ID CP2262433

Vila noua, P+M, teren 350 mp - zona Bariera Traian - COMISION 0%

ID CP2262433

169,000 € (negociabil)

Casă / Vilă cu 4 camere de vânzare
Nord-Est, Galati
130 mp
2024

Exclusivitate prin agentia imobiliara Mag Invest! COMISION 0%!

Descoperiți oportunitatea de a deveni proprietarul unei case contemporane, situata într-o zonă deosebită, între Bariera Traian și Lacul Brateș.

Casa propusa pentru vanzare face parte dintr-un ansamblu imobiliar nou, compus din 6 constructii cu proiect si caracteristici similare, care vor fi finalizate in 2025.

Primele două construcții, care vor fi finalizate în primăvara anului 2025, sunt proiectate să ofere confort, stil și funcționalitate, fiecare având un preț de 168.000 euro.

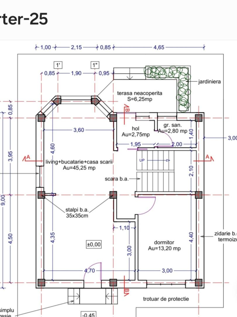
Fiecare vilă dispune de o suprafață generoasă de 130 mp, dispusă pe două nivele: parter și mansardă.

La parter, veți fi întâmpinați de un living luminos și primitor, tip open space, ideal pentru momentele de relaxare alături de familie și prieteni.

De asemenea, veți găsi un grup sanitar modern, o cameră tehnică și un dormitor matrimonial spațios, perfect pentru odihnă.

Mansarda completează fiecare proprietate cu un grup sanitar suplimentar, un dormitor cu dressing și balcon, unde vă puteți bucura de dimineți liniștite și priveliști încântătoare, precum și un dormitor mai mic, ideal pentru copii sau birou.

Construcția este realizată din BCA de calitate superioară, cu armaturi din beton armat, iar acoperișul este din tablă Lindab, asigurând durabilitate și eficiență energetică.

Încălzirea în pardoseală și feroneria din termopan cu barieră termică contribuie la un confort termic optim, reducând costurile de întreținere.

Un aspect remarcabil al acestor case este posibilitatea de personalizare în funcție de preferințele viitorului proprietar, astfel încât fiecare detaliu să reflecte stilul și nevoile dumneavoastră.

Prețul propus pentru tranzactionarea acestui imobil este de 169.000 euro, iar COMISIONUL pentru tranzacționare este 0% pentru cumparator

Profitați de această oportunitate unică de a vă crea căminul perfect în una dintre cele mai căutate zone ale orașului!

Pentru mai multe informații sau pentru a programa o vizionare, nu ezitați să ne contactați!

Telefon contact: 0740.949.871 - Marian Ene, consilier investiții Mag Invest.

Citește mai mult

  • Număr camere
    4
  • Dormitoare
    2
  • Număr bucătării
    1
  • Număr băi
    2
  • Geam la baie
    Da
  • Număr balcoane
    1
  • Număr locuri parcare
    2
  • Disponibilitate
    Imediat
  • Tip casă
    Individual
  • Stare interior
    Nou
  • Anul finisării
    2025
  • Suprafață utilă
    130 mp
  • Suprafață construită
    145 mp
  • Suprafață construită la sol (Amprentă)
    75.0 mp
  • Suprafață teren
    350 mp
  • Suprafață curte liberă
    270 mp
  • Deschidere
    14 m
  • Acoperiș
    Tablă
  • Stadiu construcție
    La roșu
  • An construcție
    2024
  • Construcție nouă
    Da
  • Număr etaje clădire
    1
  • Are mansardă
    Da

Facilități

Acoperiș
Apă
Bucătărie deschisă
Calorifere
Canalizare
CATV
Centrală proprie
Curent
Curte
Ferestre PVC
Gaz
Geamuri cu izolație fonică
Grădină proprie
Iluminat stradal
Încălzire prin pardoseală
Internet
Izolație exterioară
Mijloace de transport în comun
Parcare deschisă
Străzi asfaltate
Telefon
WC Serviciu
Zonă pentru barbeque
Marian Ene
agent

0740949871


Solicită chiar acum o vizionare
Telefon
Sună acum Solicită vizionare
Necesare:

Site-ul nu poate funcționa corect fără aceste cookie-uri. Vezi cookie-urile

Statistică:

Strângem statistici anonime despre voi, vizitatorii unici, pentru a vă îmbunătăți experiența dumneavoastră. Vezi cookie-urile

Marketing:

Pentru a ne promova mai eficient serviciile noastre, folosim cookies pentru a vă identifica și a vă oferi proprietăți și servicii personalizate. Vezi cookie-urile

Acest site folosește cookies, află detalii. Alege ce tipuri de cookies dorești să permitem: